30
$2,999,000 Sale
Listed 126 days ago
3835 OLD HIGHWAY 17
· 2+3
· 3.0
· 19
· 1500 - 2000
Key Facts
Key facts for 3835 OLD HIGHWAY 17
Property Type
House, House
Parking
Garage: Yes, 19 parking
MLS #
X12182577
Size
1500 - 2000 sqft
Basement
Finished, Full (Finished)
Listed on
-
Lot size
-
Tax
-
Days on Market
-
Year Built
-
Maintenance Fee
-
Description
Experience resort-style living like never before in this breathtaking waterfront estate, set on a magnificent 1.89-acre lot. Every inch of this meticulously crafted 4+ bedroom, 4-bathroom home exudes luxury, with high-end upgrades and custom finishes throughout. The open-concept layout is designed t...o impress, featuring soaring vaulted ceilings, a sleek gourmet kitchen, and an elegant living/dining area that blends comfort with sophistication. The fully finished walkout basement extends your living space and opens to an outdoor sanctuary that feels like a private resort. Covered patios invite you to unwind or entertain in style, while panoramic sunset views set the tone for unforgettable evenings. Step into your personal oasis: a stunning inground pool illuminated by marine lights, a charming pool house with its own bathroom, a tranquil fish pond, a cozy firepit, and a one-of-a-kind gazebo built around a living tree. A 218-ft break wall and multiple garages complete this rare offering. This is more than a home, it's the ultimate lifestyle. Every luxury, every detail, every moment, right at your fingertips. (id:10452)
Similar Properties (No results)
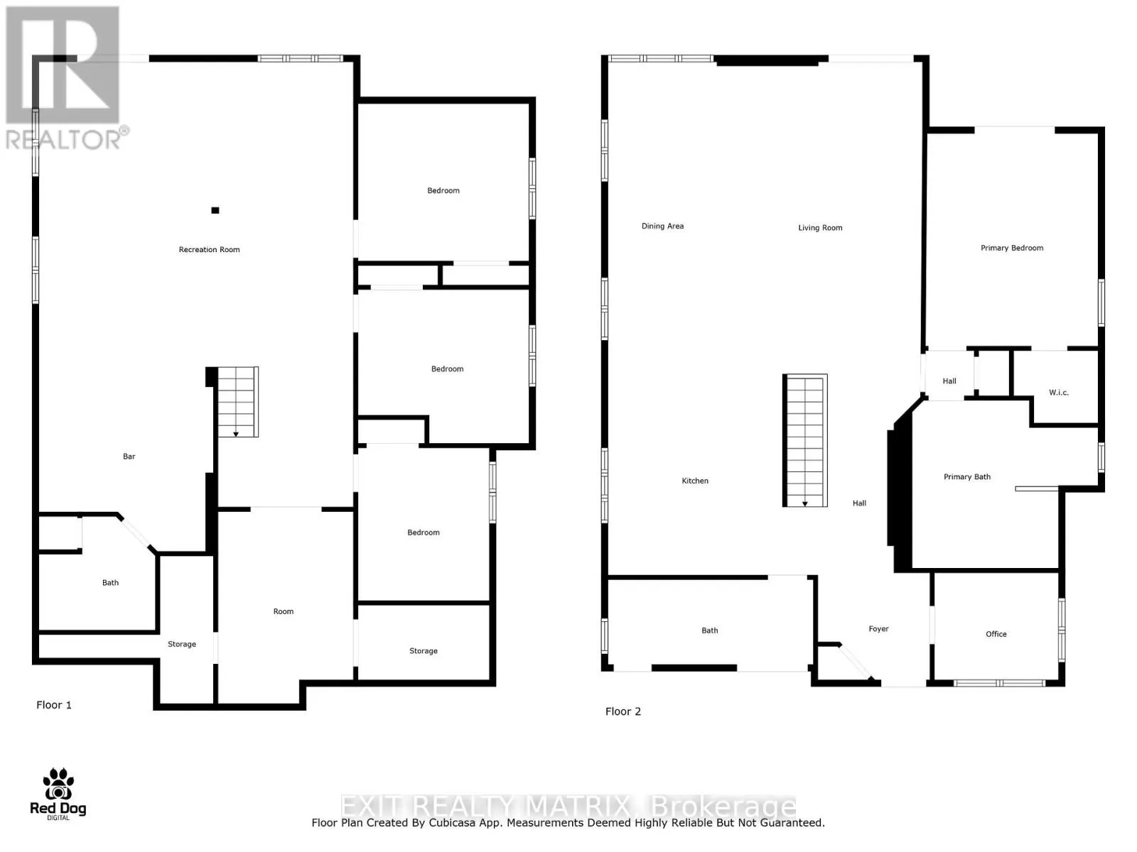
Room Types
Bedroom
-
Dimensions 3.47 m x 2.99 m
111.68 sqft
Bedroom
-
Dimensions 3.88 m x 3.5 m
146.17 sqft
Bedroom
-
Dimensions 3.88 m x 3.58 m
149.52 sqft
Listing courtesy of: EXIT REALTY MATRIX
This REALTOR.ca listing content is owned and licensed by REALTOR® members of The Canadian Real Estate Association.